Property Description
🌊 Luxury House for Rent on Shek O Headland
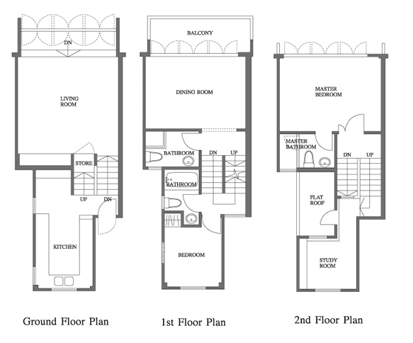
A rare opportunity to lease a luxury house on Shek O Headland, offering breathtaking ocean views, bright open interiors, and generous outdoor spaces including a private roof and terrace—perfect for relaxing or entertaining against a stunning coastal backdrop.
Inside, the home features a fully fitted kitchen equipped with kitchen cabinets, gas hob, induction cooker, cooker hood, refrigerator, electric oven, microwave oven, dishwasher, and a washing & drying machine. Spacious living and dining areas, along with well‑designed bedrooms, create an elegant and comfortable environment ideal for high‑end tenants.
Located in one of Hong Kong’s most exclusive seaside enclaves, residents enjoy easy access to Shek O Beach, Dragon’s Back, and the Shek O Golf & Country Club, all while remaining within reach of key business districts on Hong Kong Island.
Your information
- Principal and Interest
- Property Tax
- HOA fee
- Private Mortgage Insurance


































