Property Id: 20129
NET AREA: 2,284 ft2
GROSS AREA: 2,650 ft2
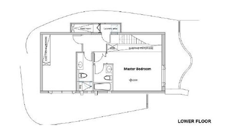
Bedrooms: 3
Bathrooms: 3.5
Building Age: 1966
Parking: 1
Maid's Room: Yes
Other Features
balcony
garden
green view
outdoor pool
pet friendly
playground
security
terrace
Property Description
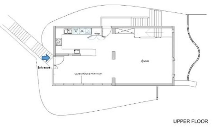
CLOUD NINE, charming two-storey detached houses in a secure gated complex. Nestled in a verdant setting at the heart of Hong Kong’s most exclusive residential neighborhoods. CLOUD NINE is a rarity in the market, it offers luxurious space, comfort and outstanding views of Island South and The Peak’s woodlands. Small complex has a communal pool, perfect for family with kids. The well-proportioned spaces include a foyer and living room, leading out to a terraced garden. Generous in layout and size, the property exudes the best in luxury living.
Location wise, is easy walk to Peak Galleria, supermarket. Direct access to hiking trails.
Sat
14
Feb
Sun
15
Feb
Mon
16
Feb
Tue
17
Feb
Wed
18
Feb
Thu
19
Feb
Fri
20
Feb
Sat
21
Feb
Sun
22
Feb
Mon
23
Feb
Your information
HKD1.00
per month- Principal and Interest
- Property Tax
- HOA fee
- Private Mortgage Insurance
HKD 0.00




























