Property Description
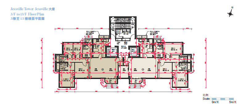
Nestling in the forests of Pokfulam, Jessville is surrounded by verdant greenery and sweeping views. The 14-storey newly completed Jessville Tower stands side by side with the 90-year-old Jessville Manor. The manor has been revitalized into 4 luxury apartments. Some Jessville Tower units are now available for rent. The development provides three to four-bedroom units and a maid’s room, with saleable areas ranging from 1,358 to 1,431 sq ft.
Nestling in the hills of Pokfulam on the verge of virgin forest is a 90-year-old mansion called Jessville, which is regarded by some as architectural splendour worthy of historic interest. It was built in 1929 by W. N. Thomas TAM Nagar-Tse and named in honor of his wife, Jessie TO Pui-Chun. It was not only their marital home but also the home of many of their orphaned siblings. Despite its impressive portals, its interior was in fact quite bare.
The edifice has now been re-invented as “Jessville Manor” and converted into 4 luxury apartments of some grandeur. In its grounds is added a new block of flats called Jessville Tower, where every unit commands a sweeping view to the south. Double-glazing and external louvres provide insulation. The old garden has been extended with an infinity pool, play areas, and an orchard. There is a 3-storey car park, where every parking space has an electric charger.
Your information
- Principal and Interest
- Property Tax
- HOA fee
- Private Mortgage Insurance






























