Property Description
THE GRAND PANORAMA, is within walking distance of the escalator and has excellent public transport connections to the CBD and Central. Shuttle bus service exclusive to the occupants. It has an outdoor swimming pool and good clubhouse facilities. The saleable areas of the apartments are from 687-1649 sf.
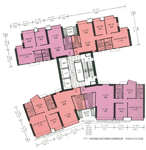
View:
– Open views of the city and a part of the Harbour.
– Spacious layout allows for an optimal arrangement of furniture.
– Master bedroom has a large built-in wardrobe and can accommodate a king-size bed with additional furniture.
– Two other bedrooms have many furnishing options.
– Superb open kitchen includes essential appliances and built-in cabinets.
– Master bathroom is well maintained.
– Guest bathrooms, one on each level, are in simple and clean design.
– Big utility room offer storage option.
Your information
- Principal and Interest
- Property Tax
- HOA fee
- Private Mortgage Insurance
































